Projekt Dom na Tysiącleciu
Dom jednorodzinny parterowy
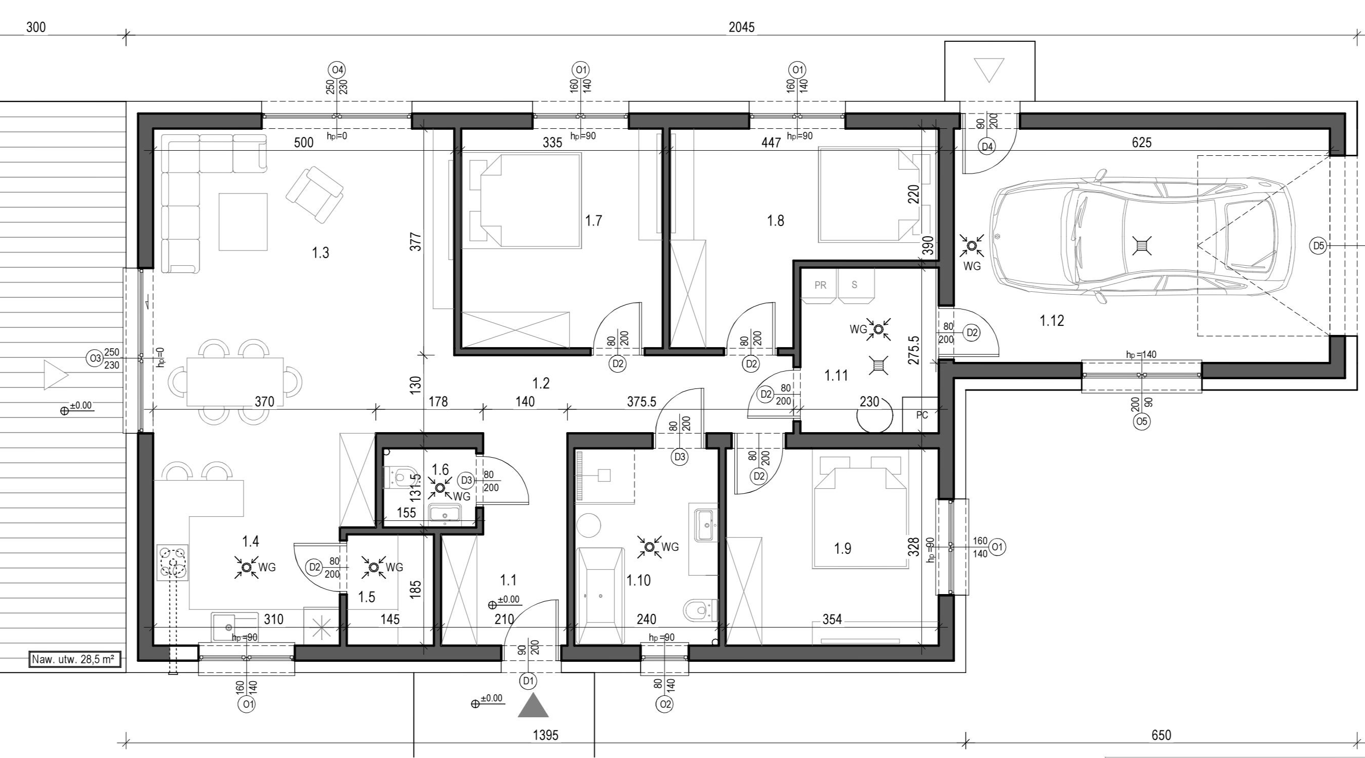
Wymiary zewnętrzne budynku: 9,50×20,45m
| 1. | Wiatrołap | 6,24 m² |
| 2. | Komunikacja | 7,33 m² |
| 3. | Salon z jadalnią | 25,35 m² |
| 4. | Kuchnia | 11,88 m² |
| 5. | Spiżarnia | 2,68 m² |
| 6. | Wc | 2,04 m² |
| 7. | Pokój 1 | 12,24 m² |
| 8. | Pokój 2 | 12,82 m² |
| 9. | Pokój 3 | 11,61 m² |
| 10. | Łazienka | 7,87 m² |
| 11. | Pom. Techniczne | 6,34 m² |
| 12. | Garaż | 24,38 m² |
| RAZEM: | 130,78 m² |
Projekt domu, Dom na Tysiącleciu, to nowoczesny i funkcjonalny budynek parterowy, stworzony z myślą o rodzinach szukających przestronnej i komfortowej przestrzeni życiowej. Jego prostota formy oraz przemyślana estetyka idealnie odpowiadają na potrzeby współczesnych inwestorów, którzy cenią sobie wygodę i oszczędność.
Wnętrze domu zaprojektowane zostało z myślą o maksymalnej funkcjonalności. Centralnym punktem jest przestronny salon, połączony z jadalnią, tworzący doskonałe miejsce do relaksu i wspólnych chwil z rodziną. W pobliżu znajduje się nowoczesna kuchnia, która dzięki praktycznej spiżarni staje się funkcjonalnym sercem domu. Projekt uwzględnia trzy sypialnie, które zapewniają mieszkańcom wygodę oraz możliwość dowolnej aranżacji przestrzeni, na przykład jako pokoje dziecięce, sypialnia rodziców czy gabinet do pracy.
Dom wyróżnia się nowoczesną elewacją w stonowanych kolorach. Duże przeszklenia wprowadzają do wnętrza mnóstwo naturalnego światła, tworząc przyjazną i przestronną atmosferę.
Projekt domu Dom na Tysiącleciu jest doskonałą propozycją dla osób, które szukają prostych, ale eleganckich rozwiązań. Jest to przestronny dom, który łączy nowoczesny design z funkcjonalnością, oferując komfortową przestrzeń do życia w ekonomicznym wydaniu.
POZNAJ NASZĄ OFERTĘ !
I wybierz zakres wykonywanych prac budowlanych przez naszą firmę


















