Projekt Dom przy Olchowej 2
Dom jednorodzinny parterowy
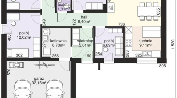
Wymiary zewnętrzne budynku: 14,65 x 15,20 m
0
m2
POWIERZCHNIA DOMU
0
LICZBA SYPIALNI
0
LICZBA ŁAZIENEK
0
ILOŚĆ STANOWISK GARAŻOWYCH
| Wiatrołap | 5,01 m² |
| Hall | 8,40 m² |
| Kotłownia | 6,70 m² |
| Pokój | 12,02 m² |
| Pokój | 12,02 m² |
| Łazienka | 7,29 m² |
| WC | 1,31 m² |
| Pokój | 12,02 m² |
| Pokój dzienny | 26,13 m² |
| Kuchnia | 9,11 m² |
| Pokój | 6,69 m² |
| Garaż dwustanowiskowy | 32,15 m² |
| RAZEM: | 138,85 m² |
Projekt domu Dom przy Olchowej 2 to funkcjonalny, parterowy dom jednorodzinny o powierzchni użytkowej 138,85 m² z dwustanowiskowym garażem, idealny dla 4–5-osobowej rodziny, z prostą murowaną konstrukcją, dwuspadowym dachem, przestronnym salonem połączonym z kuchnią, czterema sypialniami, łazienką, osobnym WC, kotłownią i wiatrołapem, zaprojektowany z myślą o komforcie, energooszczędności i łatwej budowie zgodnej z WT 2021. Dwustanowiskowy garaż z bezpośrednim przejściem do części mieszkalnej zwiększa wygodę codziennego użytkowania i sprawdzi się zarówno w mieście, jak i na działce podmiejskiej.
PROJEKT:
Autor: GALERIADOMOW.PL
POZNAJ NASZĄ OFERTĘ !
I wybierz zakres wykonywanych prac budowlanych przez naszą firmę













