Projekt Martin Beta Max
Dom jednorodzinny parterowy
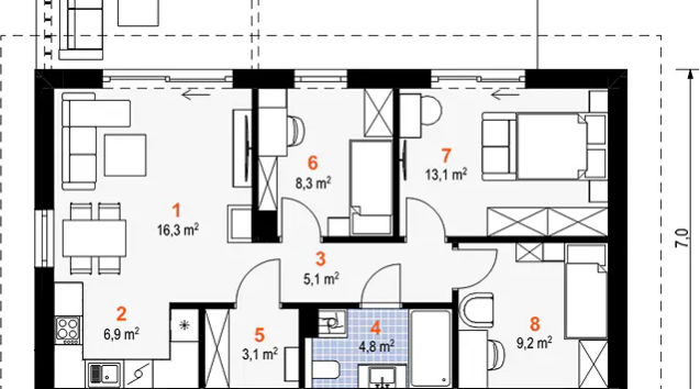
Wymiary zewnętrzne budynku: 7,0 x 12,2 m
| Pokój dzienny | 16,30 m² |
| Kuchnia | 6,90 m² |
| Hall | 5,10 m² |
| Łazienka | 4,80 m² |
| Wiatrołap | 3,20 m² |
| Pokój | 8,30 m² |
| Pokój | 13,10 m² |
| Pokój | 9,20 m² |
| RAZEM: | 66,90 m² |
Projekt domu Martin Beta Max 1311 (KRD2926) to nowoczesny, parterowy dom jednorodzinny o powierzchni użytkowej 66,9 m², bez garażu, zaprojektowany w stylu minimalistycznym z prostą bryłą i dwuspadowym dachem (kąt 30°), idealny dla 2–4-osobowej rodziny; układ pomieszczeń obejmuje wiatrołap (3,2 m²), hol (5,1 m²), przestronny salon z aneksem kuchennym (16,3 m² + 6,9 m²), trzy pokoje (13,1 m², 9,2 m², 8,3 m²) oraz łazienkę (4,8 m²), wszystkie strefy usytuowane na jednej kondygnacji, co gwarantuje funkcjonalny i oszczędny w realizacji układ, a elewację zdobią minimalistyczne detale z drewna i ażurowe przesłony nad tarasem, podnosząc komfort i estetykę domu.
Autor: Archeton
POZNAJ NASZĄ OFERTĘ !
I wybierz zakres wykonywanych prac budowlanych przez naszą firmę

















