Projekt Narcyz
Dom jednorodzinny z poddaszem użytkowym
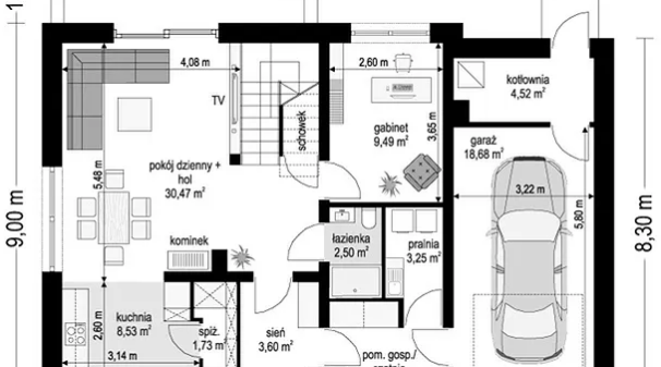
Wymiary zewnętrzne budynku: 8,30×13,10m
| Wiatrołap | 3,60 m² |
| Garderoba | 4,74 m² |
| Pralnia | 3,25 m² |
| Łazienka | 2,50 m² |
| Pokój dzienny + hall | 30,47 m² |
| Kuchnia | 8,53 m² |
| Spiżarnia | 1,73 m² |
| Pokój | 9,49 m² |
| Kotłownia | 4,52 m² |
| Garaż jednostanowiskowy | 18,68 m² |
| RAZEM: | 87,51 m² |
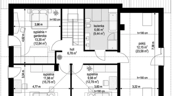
| Hall | 6,78 m² |
| Pokój | 9,98 m² |
| Pokój | 11,98 m² |
| Pokój + garderoba | 13,35 m² |
| Łazienka | 6,66 m² |
| Pokój | 12,15 m² |
| RAZEM: | 60,90 m² |
Projekt domu Narcyz – nowoczesny i energooszczędny dom jednorodzinny z poddaszem użytkowym i garażem. Ten projekt domu łączy w sobie sprawdzoną architekturę z funkcjonalnością. Charakteryzuje się przestronnym wnętrzem z niemal 40-metrowym salonem połączonym z kuchnią, dodatkowym pokojem na parterze oraz czterema wygodnymi pokojami na poddaszu. Posiada również dużą liczbę pomieszczeń gospodarczych, takich jak spiżarnia, pralnia, suszarnia oraz pojemna garderoba. Niewielka i prosta bryła domu przekłada się na łatwość i niskie koszty budowy. Dzięki nowoczesnym instalacjom i dobrej izolacji, dom jest wysoce energooszczędny, co zapewnia niskie koszty utrzymania. Istnieje możliwość powiększenia poddasza poprzez podniesienie ścianki kolankowej. Idealny dla osób ceniących komfort, estetykę i niskie koszty eksploatacji.
Autor: MG Projekt
POZNAJ NASZĄ OFERTĘ !
I wybierz zakres wykonywanych prac budowlanych przez naszą firmę






















