Projekt Tęczowy
Dom jednorodzinny parterowy
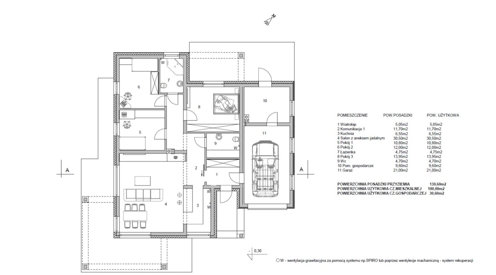
Wymiary zewnętrzne budynku: 13,85×14,27m
0
m2
POWIERZCHNIA DOMU
0
LICZBA SYPIALNI
0
LICZBA ŁAZIENEK
0
ILOŚĆ STANOWISK GARAŻOWYCH
| Wiatrołap | 5,05 m² |
| Korytarz | 11,70 m² |
| Kuchnia | 6,55 m² |
| Salon z jadalnią | 30,50 m² |
| Pokój 1 | 10,80 m² |
| Pokój 2 | 12,00 m² |
| Łazienka | 4,75 m² |
| Pokój 3 | 13,95 m² |
| Wc | 4,70 m² |
| Pom. Gospodarcze | 9,60 m² |
| Garaż | 21,00 m² |
| RAZEM: | 130,60 m² |
Projekt domu Tęczowy to idealna propozycja dla osób szukających funkcjonalnej i nowoczesnej przestrzeni o powierzchni użytkowej 100,60 m². Główna część mieszkalna została zaplanowana z myślą o komforcie, oferując przestronny salon z aneksem jadalnym, który tworzy serce domu, sprzyjając wspólnym chwilom z rodziną.
W projekcie przewidziano również praktyczną kuchnię, trzy wygodne pokoje, które mogą służyć jako sypialnie, pokoje dziecięce lub gabinet. Komfort użytkowania podnosi funkcjonalna łazienka oraz osobna toaleta. W projekcie znajduje się również przestronny garaż oraz pomieszczenie gospodarcze, co ułatwia organizację codziennych potrzeb.
Dom Tęczowy to doskonałe rozwiązanie dla rodzin ceniących wygodę, estetykę i praktyczność.
Zachęcamy do zapoznania się z innymi propozycjami dostępnymi pod tym linkiem: https://e-palbud.pl/wykonawstwo/gotowe-projekty/.
PROJEKT:
WIZUALIZACJA WNĘTRZ:
REALIZACJA:
POZNAJ NASZĄ OFERTĘ !
I wybierz zakres wykonywanych prac budowlanych przez naszą firmę









































